** Ein Haus mit Zukunft ” Verwirklichen Sie Ihren Traum vom Eigenheim **

Kaufpreis 99.000 €
Interne Objekt-ID
5287
Externe Objekt-ID
ID348AK
OpenImmo-ID
Frymo_5287_ID348AK
Stand vom
28.06.2025

Objektbeschreibung

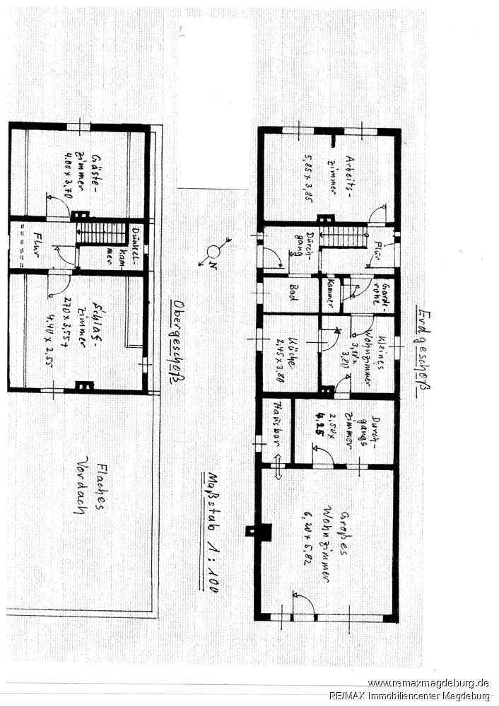
Das Einfamilienhaus, mit ca 110m² Wohnfläche, wurde 1948, in massiver Bauweise , auf dem ca. 1000m² großem Grundstück, errichtet. Erweiterungen und Umbauten, erfolgten bis ca 1980. Hier liegen die Baugenehmigungen vor.

Im Erdgeschoss, befinden sich 4 Zimmer, Küche, Bad, Flur sowie 3 kleinere Räumlichkeiten. Im Ober-bzw. Dachgeschoss, befinden sich weitere 2 Schlafzimmer, Flur und Abstellraum.

Das Haus ist teilunterkellert. Weitere Modernisierungsarbeiten, efolgten 2006/2008. Gasheizung/Therme, Fenster sowie neue Dacheindeckung.
Die Elektroleitungen wurden nur zum Teil erneuert und liegen, wie auch die Heizleitungen, nicht unter Putz.
Unter den Teppichböden, befinden sich noch die alten Dielen.

Glasfaseranschluss, für Internet, ist vorhanden.

Das Grundstück, ist mit Rasen, Baumbestand und Sträuchern angelegt. Für die Bewässerung, steht ein Ringbrunnen, mit einer Tiefe von 8,50 Meter, zur Verfügung.

Ein Nebengelass und eine Garage, stehen auf dem Grundstück, ebenfalls zur Verfügung.

Das Objekt ist noch bewohnt, daher stehen uns keine Innenaufnahmen zur Verfügung.

Wesentlicher Energieträger für das Haus ist Gas.

Gerne präsentieren wir Ihnen diese Immobilie, ausführlich in unserem Büro. Wir freuen uns auf Ihren Anruf

Das hat diese Immobilie für Sie zu bieten

Garage
Ja
Standort
39164 Domersleben
Adresse
Martin-Selber-Straße 16
Wohnfläche
ca. 110,00 m²
Nutzfläche
ca. 110,00 m²
Grundstück
ca. 1.000,00 m²
Anzahl Zimmer
6
Anzahl der Schlafzimmer
5
Anzahl Badezimmer
1
Bezugsfrei ab
31.03.2026

Ausstattung

Das Haus, ist mit Teppichboden und Fliesen ausgestattet.
Renovierungs und Sanierungsarbeiten, sind hier erforderlich

Lage

Wanzleben-Börde grenzt an folgende Städte und Gemeinden: Hohe Börde, Magdeburg, Sülzetal, Egeln und Oschersleben (Bode).
Diese Immobilie, befindet sich kanpp 5 km, von Wanzleben entfernt.
Durch die Landstraßen L24 und L49 sowie die nah gelegene Autobahn A2, habe wir hier eine gute Verkehrsanbindung.

Weitere Informationen

Alle Daten in diesem Exposé beruhen auf Angaben des Verkäufers. Die Objektangaben wurden mit großer Sorgfalt zusammengestellt. Für die Richtigkeit der Verkäufer-, Anbieter- und Angebotsangaben, können wir keine Haftung übernehmen. Irrtümer bleiben vorbehalten.
Der neue Energieausweis ist beantragt und wird bei Besichtigung vorgelegt.