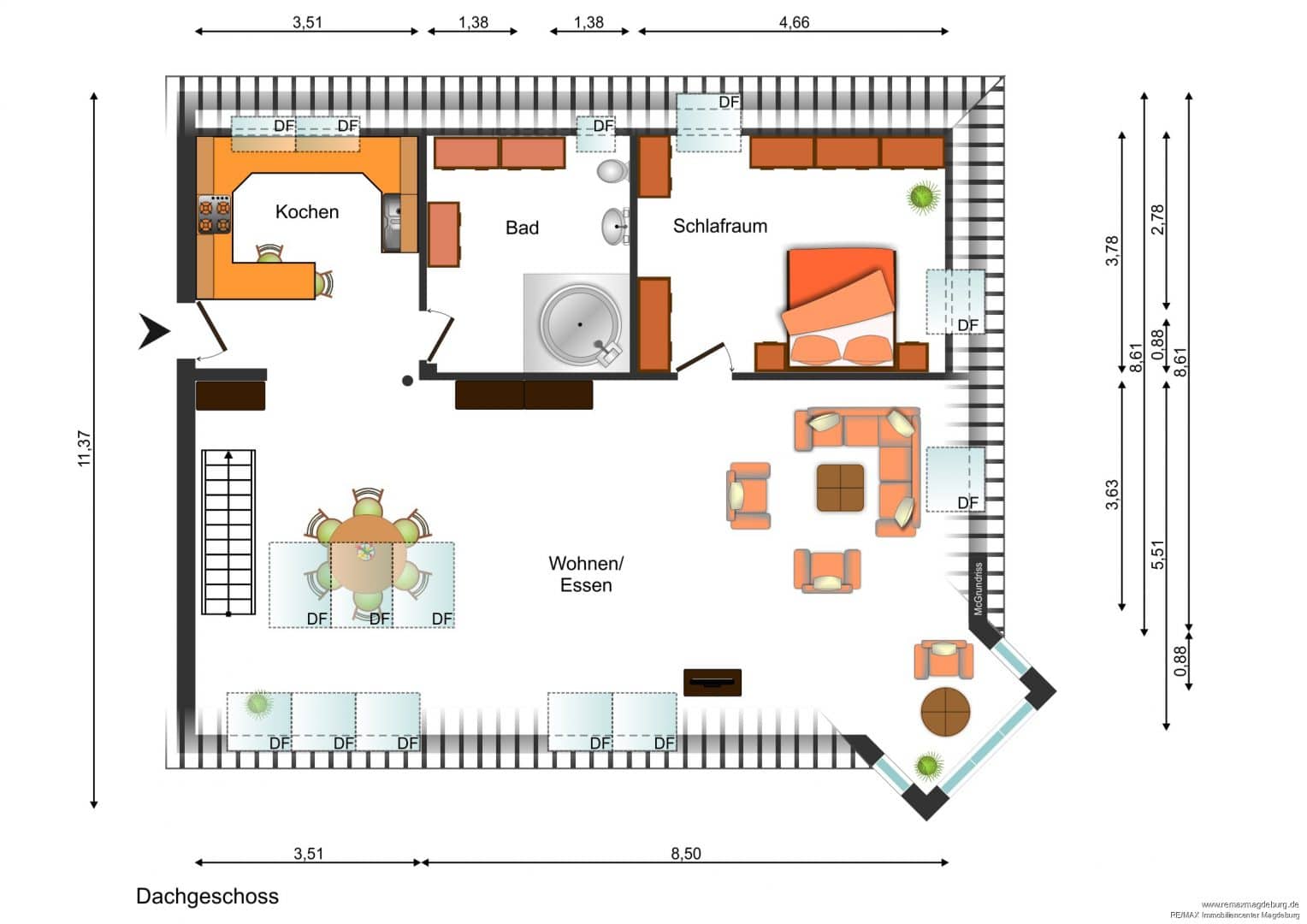
Diese gemütliche Maisonettewohnung im 2. Obergeschoss überzeugt durch ihre offene Architektur, moderne Ausstattung und ein durchdachtes Raumkonzept über zwei Ebenen. Zahlreiche Fenster durchfluten die Räume zu jeder Tageszeit mit natürlichem Licht und verleihen der Wohnung eine helle, freundliche Ausstrahlung.
Beim Betreten der Wohnung gelangt man direkt in die moderne Küche, die mit einer stilvollen Kücheninsel und einer hochwertigen Einbauküche ausgestattet ist. Sie bildet das funktionale Herzstück der unteren Ebene und lädt sofort zum Ankommen und Wohlfühlen ein. Direkt angrenzend befindet sich das gepflegte Tageslichtbad, welches über eine große Dusche verfügt.
Offen und lichtdurchflutet geht die Küche in den großzügigen Wohn- und Essbereich über. Vom Wohnzimmer aus gelangt man in das angrenzende Schlafzimmer, das einen ruhigen Rückzugsort schafft und ebenfalls von natürlichem Licht profitiert.
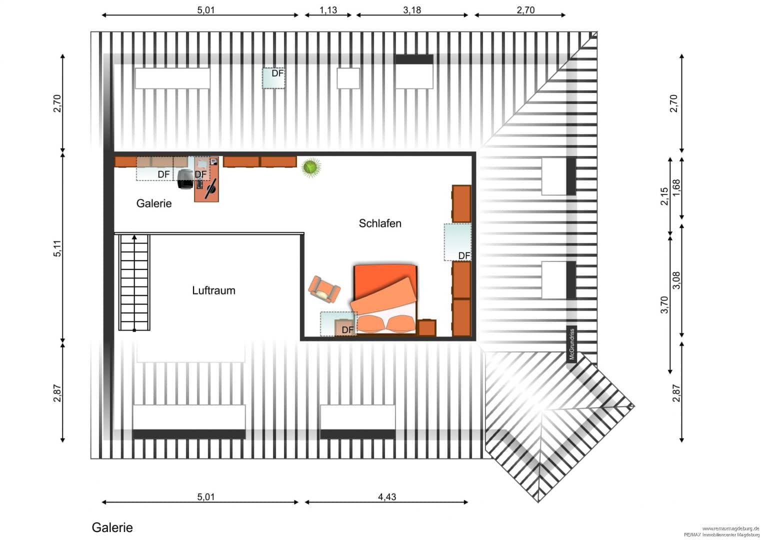
Über die Treppe führt der Weg hinauf zur offenen Galerie – ein vielseitig nutzbarer Bereich, ideal als Homeoffice, Leseecke oder kreative Zone. Auch hier sorgen mehrere Fenster für eine freundliche Atmosphäre.
Abgerundet wird das stimmige Wohnkonzept durch eine integrierte Klimaanlage, die zu jeder Jahreszeit für ein angenehmes Raumklima sorgt.
PKW-Stellplätze können auf Wunsch im Innenhof angemietet werden.
Überzeugen Sie sich selbst welche Möglichkeiten und Platzangebot Ihnen diese Immobilie bietet und vereinbaren Sie noch heute einen Termin mit uns.
Wir freuen uns auf Ihren Anfrage!
Wir bitten um Ihr Verständnis, dass wir das Exposé lediglich bei Angabe der vollständigen Kontaktdaten versenden können.













