In ruhiger Lage von Ziepel präsentiert sich dieses gepflegte Wohnhaus im Bungalowstil als vielseitiges und einladendes Zuhause. Ob als großzügiges Familiendomizil, als Mehrgenerationenlösung oder als attraktive Kapitalanlage: Die Immobilie eröffnet zahlreiche Möglichkeiten und überzeugt zugleich mit einem beeindruckenden Grundstück von ca. 3.185 m².
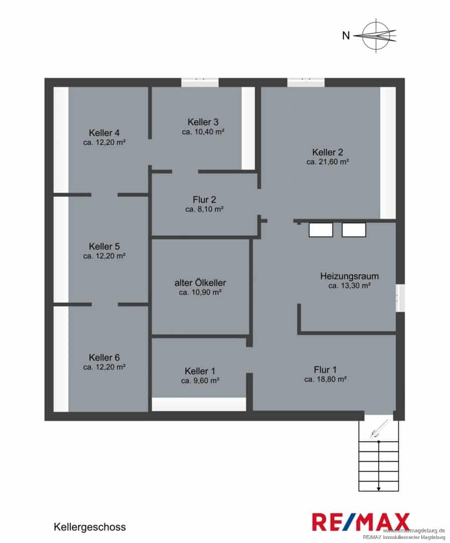
Das Haus verfügt insgesamt über ca. 294 m² Wohnfläche, die sich auf zwei eigenständige Einheiten verteilt. Die linke Wohneinheit bietet ca. 131 m² und zeichnet sich durch eine behagliche und funktionale Raumgestaltung aus. Das helle Tageslichtbad ist sowohl mit einer Dusche als auch mit einer Badewanne ausgestattet. Die offene Küche mit großem Essbereich bildet den kommunikativen Mittelpunkt des Wohnbereichs und bietet direkten Zugang zur großzügigen Terrasse. Ein Schlafzimmer und ein Kinderzimmer schaffen angenehme Rückzugsorte, während das weitläufige Wohnzimmer mit seiner offenen Gestaltung zum Entspannen einlädt. Ergänzt wird diese Einheit durch einen praktischen Abstellraum.
Die rechte Wohneinheit mit etwa 155 m² Wohnfläche eröffnet ebenfalls zahlreiche Nutzungsmöglichkeiten. Ihr Herzstück ist das große Wohnzimmer mit Kamin, das an kühleren Tagen eine warme, einladende Atmosphäre schafft. Das Vollbad sowie die Küche – ausgestattet mit einer Einbauküche – verfügen jeweils über einen Terrassenzugang und sorgen für lichtdurchflutete Wohnbereiche. Vier weitere Zimmer bieten flexible Gestaltungsmöglichkeiten, etwa als Schlaf-, Kinder-, Gäste- oder Arbeitszimmer.
Das weitläufige Grundstück bietet vielseitige Möglichkeiten für Gartenliebhaber, Freizeitgestaltung oder zukünftige Erweiterungen. Die ebenerdige Bauweise des Hauses sorgt für hohen Wohnkomfort und macht die Immobilie sowohl für Familien als auch für ältere Bewohner besonders attraktiv.
Dieser besondere Bungalow vereint Komfort, Flexibilität und ein außergewöhnlich großzügiges Raumangebot – ideal für alle, die viel Platz wünschen oder eine solide Kapitalanlage suchen.
Überzeugen Sie sich selbst, welche Möglichkeiten Ihnen dieses empfehlenswerte Immobilienangebot bietet und vereinbaren Sie noch heute einen Termin mit uns, um Ihnen die Immobilie ausführlich präsentieren zu können.
Wir bitten um Verständnis, dass wir Ihre Anfrage nur bearbeiten können, wenn Sie uns bei einer Kontaktaufnahme Ihre vollständigen Kontaktdaten angeben. Wir freuen uns auf Ihren Anruf!
